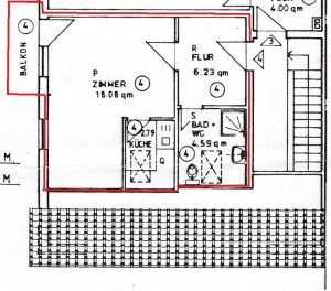
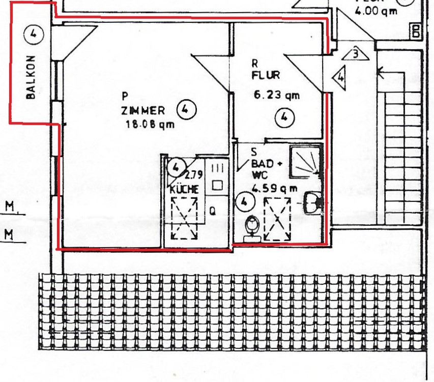
Zum Verkauf steht ein gut geschnittenes 1-Zimmer-Apartment im Dachgeschoss eines gepflegten 4-Parteien-Hauses aus dem Jahr 1983 in beliebter Lage von Mannheim-Neckarau.
Die Wohnung überzeugt durch ihre praktische Aufteilung mit separater Küche, Diele und Badezimmer sowie durch ihre vielseitige Nutzbarkeit – sowohl für Eigennutzer als auch Kapitalanleger.
Ein besonderer Vorteil: Die Wohnung steht leer und kann somit sofort genutzt oder neu vermietet werden.
Nicht umlagefähige Kosten incl. Rücklage: 848,-€/Jahr
Rücklagen Haus: 29.115.-€
Die Wohnung befindet sich in einem renovierungsbedürftigen Zustand, bietet jedoch eine ideale Grundlage für individuelle Modernisierung und Wertsteigerung.
Nutzung & Potenzial:
Dank des Leerstands ergeben sich attraktive Möglichkeiten:
•Sofortige Eigennutzung
•Neuvermietung zu aktuellen Marktkonditionen
•Wertsteigerung durch Renovierung
Nach Aufwertung lässt sich eine deutlich höhere Miete erzielen, was das Objekt besonders für Kapitalanleger interessant macht.
